Toimitilat

Vuokrataan / myydään toimitila

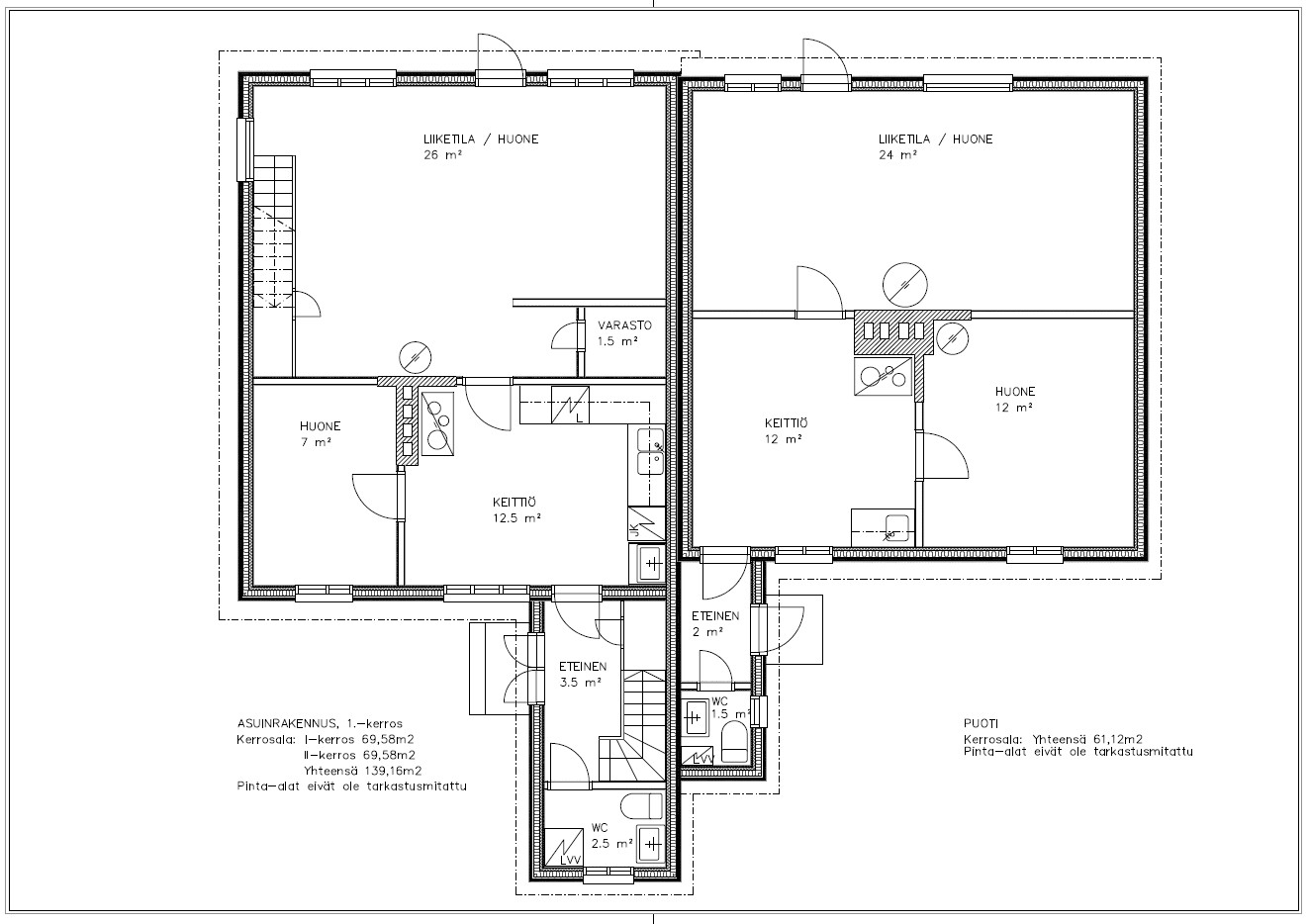
Kellokuja 3, 85 Kalajoki
Osoite7 Kpl
Osoite
Osoite
Osoite
Osoite
Osoite
Osoite

Tilatyyppi
Liikehuoneisto
Toimistotila
Meeting and celebration

Edellinen toiminta
kahvila, majoitus, myymälä, puusepänverstas

Yhteystiedot
KOY Vanha Erkki Seija Haarala
044 3422433
seija.haarala@gmail.com

Kuvaus

Plassintien varressa pieni punainen puotirakennus ja kaksikerroksinen rakennus. Pihalla entinen leipomo, saunarakennus ja kaksi makasiinirakennusta.

Hinta
Tarjous!

Takaisin
Kuuntele